Wohn(t)raum in Bookholt

Wohn(t)raum in Bookholt

Neu­bau mit 23 moder­nen Woh­nun­gen nach KfW 40 mit QNG-Zertifizierung

  • Nach­hal­tig – Kom­for­ta­bel – Förderfähig
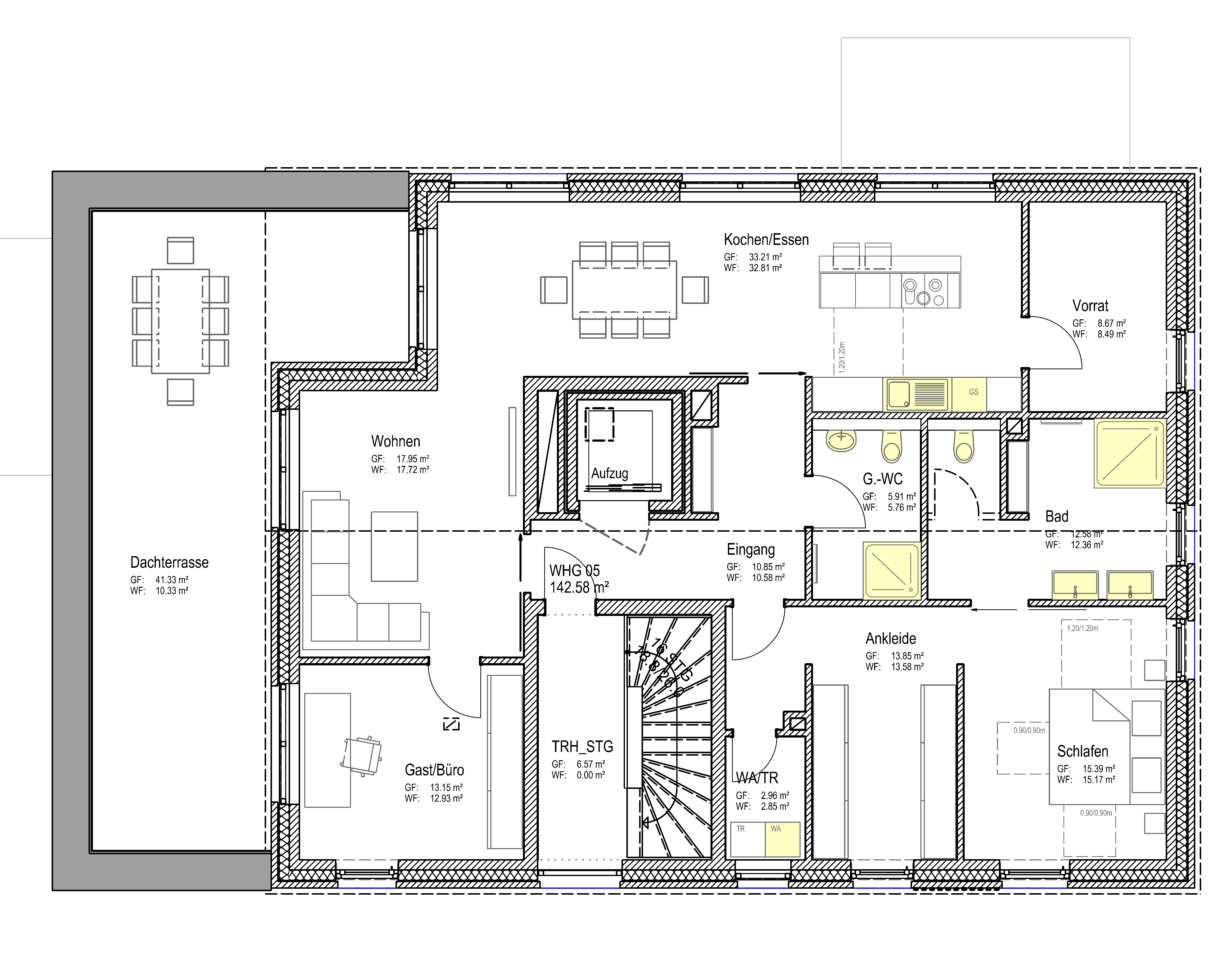
  • Wohn­flä­chen von ca. 48 bis ca. 99 m²
    Bar­rie­re­arm – effi­zi­ent – zukunftssicher
  •  
  • Jetzt inves­tie­ren – pro­fi­tie­ren Sie von attrak­ti­ver KfW-För­de­rung und Sonder-AfA!

In attrak­ti­ver Lage ent­steht ein hoch­wer­ti­ges Neu­bau­pro­jekt mit 23 moder­nen Eigen­tums­woh­nun­gen, die alle Anfor­de­run­gen an nach­hal­ti­ges, ener­gie­ef­fi­zi­en­tes und kom­for­ta­bles Woh­nen erfül­len. Die Woh­nun­gen bie­ten Wohn­flä­chen zwi­schen ca. 48 m² und 99 m² – ide­al für Sin­gles, Paa­re und klei­ne Familien.

Das Objekt wird im ener­gie­ef­fi­zi­en­ten KfW-40-Stan­dard errich­tet und ver­fügt über eine QNG-Zer­ti­fi­zie­rung (Qua­li­täts­sie­gel Nach­hal­ti­ges Gebäu­de). Damit pro­fi­tie­ren Käu­fer nicht nur von einem beson­ders nied­ri­gen Ener­gie­ver­brauch, son­dern auch von der Mög­lich­keit zur KfW-För­de­rung (zins­ver­güns­tig­ter Kre­dit) sowie der Son­der-AfA für Kapi­tal­an­le­ger.

Die Behei­zung erfolgt über eine moder­ne Luft-Was­ser-Wär­me­pum­pe in Kom­bi­na­ti­on mit einer ange­neh­men Fuß­bo­den­hei­zung in allen Räu­men. Eine Pho­to­vol­ta­ik­an­la­ge auf dem Dach pro­du­ziert zusätz­lich umwelt­freund­li­chen Strom. Für ein gesun­des Raum­kli­ma sorgt eine dezen­tra­le Wohn­raum­lüf­tung.

Die gelun­ge­ne Kom­bi­na­ti­on aus moder­ner Archi­tek­tur, durch­dach­ter Pla­nung, nach­hal­ti­ger Tech­nik und wer­ti­ger Aus­stat­tung macht die­ses Pro­jekt zu einer zukunfts­si­che­ren Inves­ti­ti­on – sowohl zur Eigen­nut­zung als auch als Kapi­tal­an­la­ge.

Die­ses Neu­bau­pro­jekt ver­eint nach­hal­ti­ge Bau­wei­se, hohe steu­er­li­che Vor­tei­le und eine exzel­len­te Lage. Es bie­tet Inves­to­ren eine siche­re und zukunfts­fä­hi­ge Kapi­tal­an­la­ge mit attrak­ti­ven Ren­di­te­mög­lich­kei­ten. Nut­zen Sie die­se ein­ma­li­ge Gele­gen­heit, um von den Vor­zü­gen die­ses Pro­jekts zu profitieren!